Barer41 - Stadtsparkasse München

 

Buchbare Lernräume und Flächen / Veranstaltungen und Events

Bauzeit 2023

Nutzungsänderung einer Kfz-Werkstatt in ein Rechenzentrum

2024: LP5 - 8

Auszug aus Projekten

TSV-Ost Dreifachhalle -

Bauzeit 2020 - 2021

Bürogebäude Tassiloplatz 7 -

Generalsanierung / BGF 6.550 m2 + TG neu 1.060 m2

Sixt Neubau Büro- und Verwaltungsgebäude -

Bauzeit 2017 bis 2018

 

Ausbau Co-Workspace Müllerstr.27 -

Bauzeit 2019

 

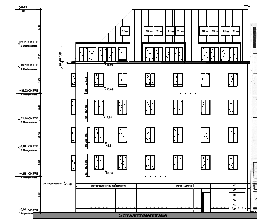
Mieterverein Sonnenstr.10 in München

Generalsanierung Bauzeit 2017 bis 2019

Neubau von 6 Wohngebäude mit TG

Bauzeit 2019 bis 2021

 

Neubau Haus am See

Bauzeit 2020 - 2021